
物件詳細
この物件の情報は「掲載日」時点の内容になります。
お探しの物件の最新の状況は以下ボタンよりお問い合わせお願いします。
お問い合わせ賃料¥440,000円
掲載日2026-05-01




アクセス
住所
最寄駅
大阪府大阪市中央区博労町3丁目1-10
大阪メトロ御堂筋線
「本町」駅 徒歩7分
大阪メトロ御堂筋線
「心斎橋」駅 徒歩9分
大阪メトロ中央線
「本町」駅 徒歩10分


設備










ビル内部屋情報
別区画にもオフィスがございます。室内のレイアウトを自由に変更できる区画など様々なタイプをご用意しております。
区画番号をクリックしてご確認ください。
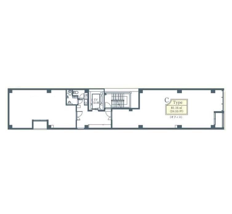
| 区画No. | 4C | |||||
|---|---|---|---|---|---|---|
| 面積(㎡) | 81.16 | |||||
| 面積(坪) |
物件説明
部屋概要
建物概要
大阪メトロ御堂筋線
「本町」駅 徒歩7分
大阪メトロ御堂筋線
「心斎橋」駅 徒歩9分
大阪メトロ中央線
「本町」駅 徒歩10分
※上記情報は2023年4月現在のもので、今後変更となる可能性がございます。
※掲載の所要時間は日中平常時のものです。
※掲載の徒歩分数は1分=80mとして換算したものです。
※表示の分数は日中平常時のもので、乗り換え待ち時間は含みません。
※最寄駅からの所要時間は、駅舎または地下鉄地上出入口からの概測距離に基づき算出しており、改札口からの所要時間とは異なります。